リゾートトラスト取引認定業者
リゾートトラスト取引認定業者
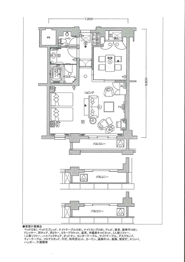
交換グレード:Cグレード
お部屋タイプ:C1
専有面積:67.49~71.65m²
室料:23,760円(税込 )
概算合計:1,848,000円(年会費・固定資産税省く)
| 項目 | 金額(税込) | 備考 |
|---|---|---|
| 物件価格 | 1,200,000円 | 預かり保証金・区分所有権・利用権を含む |
| 名義変更料 | 440,000円 | |
| 登記移転費用 | 58,400円 | 目安。実額は前後します |
| 年会費(月割) | 95,700÷12×残月 | 基準は1月~12月 |
| 固定資産税(月割) | 13,300÷12×残月 | 基準は1月~12月 |
| 仲介手数料 | 149,600円 | 会員権斡旋報酬。不動産仲介手数料は0円 |

〒547-0014 大阪府大阪市平野区長吉川辺3-9-18